วันนี้ (21 ส.ค.65) ตามที่ ได้มีการนำเสนอข่าว “ชาวบ้านในหมู่ที่ 4 ตำบลโผงเผง อำเภอป่าโมก จังหวัดอ่างทอง ร้องเรียนกรณีเขื่อนเรียงหินริมคลองโผงเผงที่เพิ่งสร้างเสร็จ แต่ชาวบ้านสังเกตเห็นว่าผนังเขื่อนเรียงหินขนาดใหญ่ที่อยู่ในโครงการก่อสร้าง บริเวณรอยต่อของผนังคอนกรีตแต่ละช่วง ถูกผู้รับเหมานำซิลิโคนสีเทายิงทับรอยต่อไว้ทั้งด้านหน้าและด้านหลัง เมื่อแกะซิลิโคนเหล่านี้ออกก็ต้องตกใจ เมื่อภายในสอดไส้วัสดุคล้ายไม้อัดแผ่นยาวตั้งแต่ด้านบนจนถึงด้านล่างไว้แทนที่จะเป็นคอนกรีต และซิลิโคนที่ปิดทับไว้เมื่อโดนความร้อนก็ละลายจนลอกออก ทำให้ชาวบ้านกังวลว่าผนังเขื่อนคอนกรีตนี้จะไม่สามารถป้องกันน้ำท่วมได้ ”
นายพรพจน์ เพ็ญพาส อธิบดีกรมโยธาธิการและผังเมือง ได้ชี้แจงรายละเอียด ดังนี้
1. งานก่อสร้างที่ปรากฏในข่าว เป็นส่วนหนึ่งของโครงการก่อสร้างระบบป้องกันน้ำท่วมพื้นที่ชุมชนโผงเผง ระยะที่ 4 อำเภอป่าโมก จังหวัดอ่างทอง ปีงบประมาณดำเนินการ 2562 – 2565 ปัจจุบันดำเนินการก่อสร้างแล้ว 99.45% โดยโครงการประกอบด้วย
1.1 งานก่อสร้างคันป้องกันน้ำท่วมแบบที่ 1-1 : กำแพง ค.ส.ล. พร้อมเขื่อนป้องกันตลิ่ง (ชนิดตีนเขื่อนหินทิ้ง) DK01 ระยะทาง 1,065.60 เมตร
1.2 งานคันป้องกันน้ำท่วมแบบที่ 1-3 : กำแพง ค.ส.ล.พร้อมเขื่อนป้องกันตลิ่ง (ชนิดตีนเขื่อนหินทิ้ง) DK01 ระยะทาง 170.57 เมตร
1.3 งานคันป้องกันน้ำท่วมแบบที่ 3-1 : กำแพง ค.ส.ล.พร้อมเขื่อนป้องกันตลิ่ง (ชนิดคาน คสล. และแผ่นกันน้ำลอด) ระยะทาง 10.00 เมตร
1.4 งานคันป้องกันน้ำท่วมแบบที่ 3-2 : กำแพงค.ส.ล.พร้อมเขื่อนป้องกันตลิ่ง (ชนิดกำแพง คสล. และแผ่นกันน้ำลอด) ระยะทาง 228.50 เมตร
1.5 งานปรับปรุงคุณภาพดิน (ชนิดตีนเขื่อนหินทิ้ง) DK01 ช่วงที่ 2 ระยะทาง 67.75 เมตร
1.6 งานคันป้องกันน้ำท่วมแบบที่ 2-3 : ก่อสร้างถนน ค.ส.ล. พร้อมกำแพงกั้นน้ำ DK02 ระยะทาง 184.635 เมตร
1.7 งานคันป้องกันน้ำท่วมแบบที่ 2-2 : ก่อสร้างถนน ค.ส.ล. พร้อมกำแพงกั้นน้ำ DK02 ระยะทาง 436 เมตร

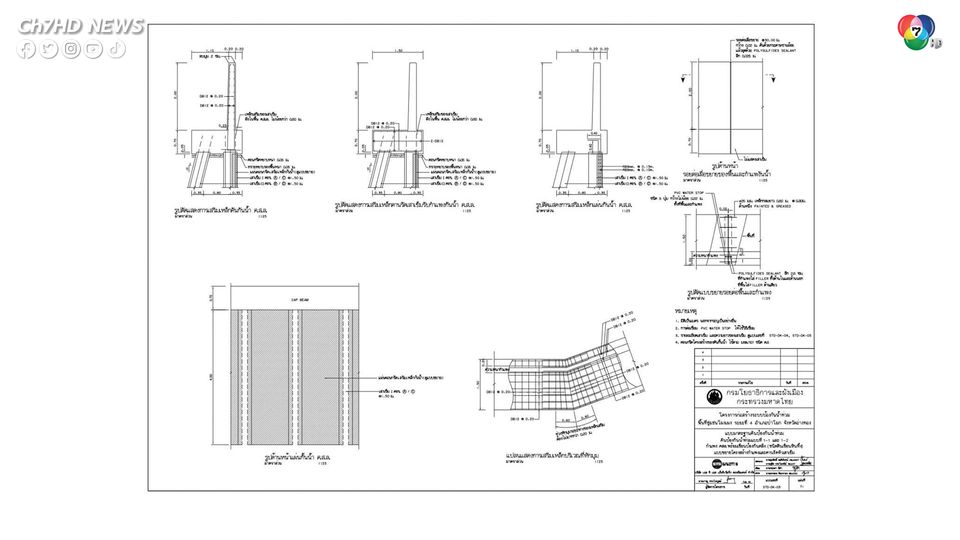
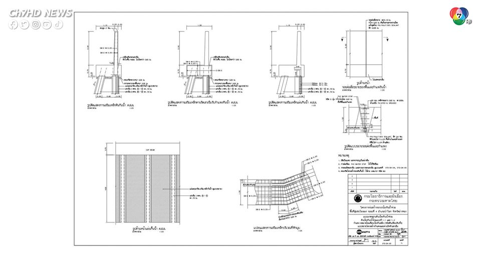
2. ผนังเขื่อนเรียงหินขนาดใหญ่ที่อยู่ในโครงการก่อสร้างตามที่ถูกกล่าวอ้างนั้น เป็นงานก่อสร้างคันป้องกันน้ำท่วมแบบที่ 1-1 ชนิดกำแพง ค.ส.ล. พร้อมเขื่อนป้องกันตลิ่ง (ชนิดตีนเขื่อนหินทิ้ง) ทางผู้รับจ้างก่อสร้างตามแบบก่อสร้าง โดยมีเว้นรอยต่อเผื่อการขยายตัวของคอนกรีต (Expansion Joint) ความกว้าง 0.02 เมตร ทุกระยะ 30.00 เมตร และติดตั้งแผ่นยางกันน้ำไหลซึมผ่าน (PVC Waterstop) ชนิด 3 ปุ่ม ความกว้าง 0.22 เมตร ตลอดแนวผนัง ค.ส.ล. ป้องกันน้ำท่วมและพื้น ค.ส.ล. รัดหัวเสาเข็ม เพื่อป้องกันน้ำรั่วซึมบริเวณรอยต่อเผื่อการขยายตัว ทำให้น้ำภายนอกไม่สามารถไหลซึมผ่านเข้ามาได้ ทั้งนี้ รอยต่อดังกล่าวมีการใช้วัสดุอุดรอยต่อ ประกอบด้วย กระดาษชานอ้อย ซึ่งผลิตมาจากเนื้อเยื่อของชานอ้อย โดยผ่านการอัดด้วยความดันสูง และชุบน้ำมัน มีคุณสมบัติด้านการทนทานต่อความชื้น หรือ สารเคมี มีความยืดหยุ่น และอุดรอยต่อด้วยน้ำยาโพลีซัลไฟด์ (Polysulfide) ซึ่งมีคุณสมบัติอุดร่องกันแตก รอยต่อโครงสร้าง อุดกันรั่วซึม สามารถทนทานต่อการยืดหดตัวได้สูง ซึ่งไม่ใช่วัสดุสอดไส้คล้ายแผ่นไม้อัดและซิลิโคลนอย่างที่กล่าวอ้าง ปัจจุบันพบว่ารอยต่อเผื่อการขยายตัวตลอดโครงการส่วนใหญ่อยู่ในสภาพสมบูรณ์ สามารถป้องกันน้ำไหลซึมผ่านได้อย่างมีประสิทธิภาพ ยกเว้นรอยต่อเผื่อการขยายตัวตามที่ปรากฏในข่าวที่พบการขยายตัวกว้างขึ้น ซึ่งกรมโยธาธิการและผังเมืองจะได้เร่งรัดให้ผู้รับจ้างดำเนินการซ่อมแซมแก้ไขรอยต่อในบริเวณดังกล่าว

3. ส่วนบริเวณด้านหลังเขื่อนที่เป็นทางเท้าปูตัวหนอนคอนกรีตที่เกิดทรุดตัวจนพังหลายจุดนั้น ทางผู้รับจ้างได้ดำเนินการก่อสร้างตามรูปแบบก่อสร้าง แต่เนื่องด้วยบริเวณชั้นดินดังกล่าวเกิดการเคลื่อนตัวของสภาพชั้นดิน ทำให้งานปูพื้นทางเท้าด้วยบล็อกประสานคอนกรีตที่แล้วเสร็จ เกิดการทรุดตัวบริเวณหลายจุด ซึ่งงานบริเวณดังกล่าวนั้นอยู่ระหว่างดำเนินการก่อสร้าง ยังไม่มีการส่งมอบงาน ทางผู้รับจ้างมิได้นิ่งนอนใจ เร่งหาวิธีการแก้ไขปัญหาและซ่อมแซมงานบริเวณดังกล่าว

และเพื่อเป็นการป้องกันไม่ให้เกิดเหตุน้ำท่วมในพื้นที่ชุมชนดังกล่าว ในส่วนของกำแพง โครงการฯ ได้สั่งการให้ผู้รับจ้างทำการตรวจสอบจุดรอยต่อทั้งหมด ถ้าพบการชำรุดให้ทำการซ่อมแซมให้แล้วเสร็จโดยด่วน ในส่วนของทางเท้า ผู้รับจ้างอยู่ระหว่างดำเนินการก่อสร้าง ซึ่งผู้ควบคุมงานได้สั่งการให้ทำการแก้ไขทั้งหมดแล้ว และเพื่อให้โครงการก่อสร้างระบบป้องกันน้ำท่วมพื้นที่ชุมชนโผงเผง ระยะที่ 4 สามารถป้องกันน้ำท่วมพื้นที่ชุมชนได้อย่างสมบูรณ์ตามวัตถุประสงค์ของโครงการ เห็นควรให้กรมชลประทานเร่งดำเนินการก่อสร้างประตูระบายน้ำคลองโผงเผงให้เสร็จโดยเร็วที่สุด เพื่อเชื่อมต่อคันป้องกันน้ำท่วมที่เว้นว่างไว้ เพื่อให้เกิดประโยชน์สูงสุดแก่ประชาชนในพื้นที่ และในระหว่างที่งานก่อสร้างประตูน้ำคลองโผงเผงยังไม่แล้วเสร็จ กรมชลประทาน/องค์กรปกครองส่วนท้องถิ่นต้องดำเนินการมาตรการป้องกันน้ำท่วมแบบชั่วคราว เช่น สร้างแนวคันดินถมหรือกระสอบทราย เพื่อป้องกันไม่ให้น้ำเข้าท่วมพื้นที่ชุมชน
